6/35 Esplanade, VICTOR HARBOR
$785,000 - $825,000
overview
-
16B9DFFC-7656-45D6-BBC4-0453DCA8C376
-
Apartment
-
Sold
-
165 sqm
-
180 sqm
-
3
-
2
-
2
Description
BEACHFRONT LIVING WITH STUNNING OCEAN OUTLOOK
Set in one of Victor Harbor’s most sought-after coastal locations, this contemporary two-storey townhouse captures the essence of seaside sophistication with stunning views across the Esplanade’s leafy reserve and the sparkling waters of Encounter Bay. Designed for effortless living and modern convenience, it offers a rare combination of space, comfort, and lifestyle appeal—just moments from cafés, the town centre, and the beach.
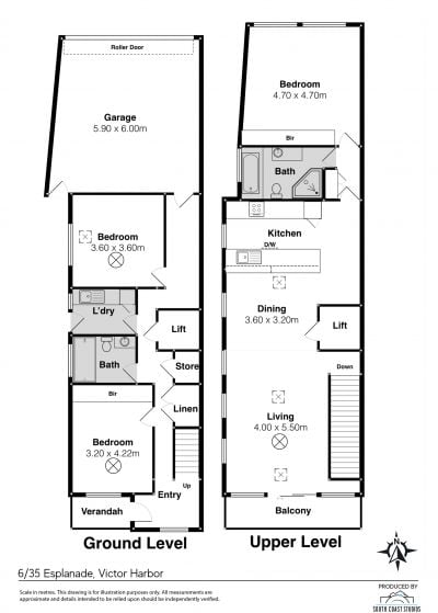
Upstairs, the open-plan living and dining area enjoys an abundance of natural light through wide picture windows, seamlessly flowing to a tiled balcony that overlooks the coast. The sleek kitchen features ample storage, large benchtops, and quality appliances, making it ideal for entertaining or relaxed day-to-day living. The upper level also hosts the master bedroom and a second bathroom, creating a private retreat complete with peaceful views and a bright, airy feel.
Downstairs, two additional bedrooms, a family bathroom, and laundry are thoughtfully arranged for comfort and practicality. A lift connects both levels, ensuring accessibility for all ages and lifestyles.
Positioned directly opposite the coastal reserve, this property invites you to step outside for morning walks along the beach, wander into town for local dining, or take the iconic Horse Drawn Tram to Granite Island. It’s the perfect balance of convenience and coastal charm, set in one of the South Coast’s most exclusive beachfront stretches.
KEY FEATURES
- Two-storey coastal townhouse in a tightly held Esplanade position
- Upper-level open living/dining area with sweeping reserve and sea views
- Modern kitchen with large benchtops, breakfast bar, and ample storage
- Master bedroom and second bathroom located upstairs for privacy and convenience
- Two additional bedrooms, main bathroom, and laundry on the lower level
- Lift access connecting both floors for easy accessibility
- Double garage with internal access and secure storage area
- Plantation shutters, ducted reverse-cycle air conditioning, and ceiling fans
- Boutique group of residences with low-maintenance surrounds
- Steps to the beach, cafés, shops, and the Granite Island tram
Council Rates: $812.50 per quarter
Strata Fees: $838.74 per quarter (Admin + Sinking Fund)
Contact Team Heaslip today for more information and inspection times:
Ben Heaslip 0439 860 891 | Daniel Maley 0429 235 238
Disclaimer: Every precaution has been taken to establish the accuracy of the material herein. Prospective purchasers should not confine themselves to the contents but should make their own enquiries to satisfy themselves in all respects. South Coast Realty will not accept any responsibility should any details prove to be incomplete or incorrect. RLA 241454.
Upstairs, the open-plan living and dining area enjoys an abundance of natural light through wide picture windows, seamlessly flowing to a tiled balcony that overlooks the coast. The sleek kitchen features ample storage, large benchtops, and quality appliances, making it ideal for entertaining or relaxed day-to-day living. The upper level also hosts the master bedroom and a second bathroom, creating a private retreat complete with peaceful views and a bright, airy feel.
Downstairs, two additional bedrooms, a family bathroom, and laundry are thoughtfully arranged for comfort and practicality. A lift connects both levels, ensuring accessibility for all ages and lifestyles.
Positioned directly opposite the coastal reserve, this property invites you to step outside for morning walks along the beach, wander into town for local dining, or take the iconic Horse Drawn Tram to Granite Island. It’s the perfect balance of convenience and coastal charm, set in one of the South Coast’s most exclusive beachfront stretches.
KEY FEATURES
- Two-storey coastal townhouse in a tightly held Esplanade position
- Upper-level open living/dining area with sweeping reserve and sea views
- Modern kitchen with large benchtops, breakfast bar, and ample storage
- Master bedroom and second bathroom located upstairs for privacy and convenience
- Two additional bedrooms, main bathroom, and laundry on the lower level
- Lift access connecting both floors for easy accessibility
- Double garage with internal access and secure storage area
- Plantation shutters, ducted reverse-cycle air conditioning, and ceiling fans
- Boutique group of residences with low-maintenance surrounds
- Steps to the beach, cafés, shops, and the Granite Island tram
Council Rates: $812.50 per quarter
Strata Fees: $838.74 per quarter (Admin + Sinking Fund)
Contact Team Heaslip today for more information and inspection times:
Ben Heaslip 0439 860 891 | Daniel Maley 0429 235 238
Disclaimer: Every precaution has been taken to establish the accuracy of the material herein. Prospective purchasers should not confine themselves to the contents but should make their own enquiries to satisfy themselves in all respects. South Coast Realty will not accept any responsibility should any details prove to be incomplete or incorrect. RLA 241454.
Features
- Website Featured Property
