18 Padman Crescent, MIDDLETON
Contact Agent
overview
-
1B08FFF2-6B4F-4B01-80C5-339E65C78975
-
House
-
Sold
-
245 sqm
-
1,147 sqm
-
4
-
2
-
4
external links
Description
PANORAMIC VISTAS & RELAXED COASTAL LIVING
'MAYSEA'
This impressive coastal residence embodies the best of Middleton living, highlighted by stunning coastline views of Middleton foreshore to Frenchman's Rock.
Having been cherished by the same family since built, the design embraces its seaside setting with practicality for everyday living.
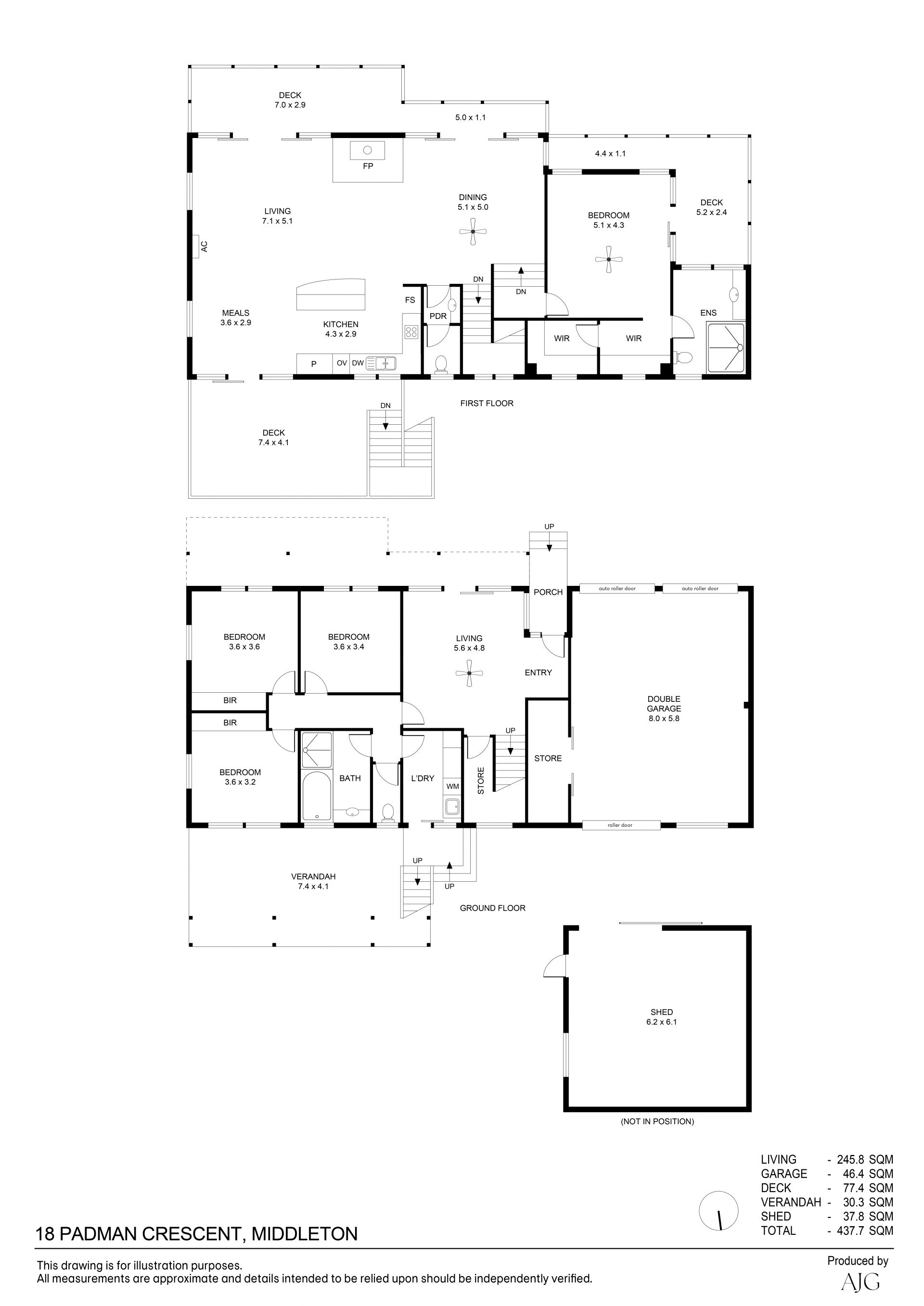
Situated on an approx. 1,126sqm allotment with the residence spread across two generous levels – the layout is ideal for families, dual living, or hosting guests.
The upper floor showcases a light-filled open-plan living/ dining zone, anchored by a contemporary kitchen that seamlessly flows out to either the southerly ocean deck or the rear northerly, under main roof BBQ-entertaining deck.
A slow-combustion fireplace, soaring ceilings, and full-length windows enhance the sense of warmth and space. The master suite completes the upper level, with walk-in robes, ensuite, and its own private undercover balcony to enjoy ocean views and spectacular sunsets.
The lower floor provides excellent separation with three additional bedrooms and a second living area, serviced by bathroom and laundry, while also benefitting from its own sea views.
Outdoors, the property has been enhanced with an automated irrigation system running along the perimeter of the backyard for easy maintenance, while generous lawns and landscaped garden beds create an inviting setting for entertaining or relaxation.
Practical features add further value, including a double garage with rear roller door access to a large 6m x 6m workshop shed which includes 240V power. Wide street frontage accommodates caravan/ boat storage with pad beside driveway.
Situated within easy walking distance to Middleton’s surf beaches and close to local cafés and attractions, this residence delivers the perfect balance of coastal lifestyle and convenience.
KEY FEATURES
- Double Garage with high clearance roller doors
- 6m x 6m Workshop shed with 240V power
- 3.5kW Solar System
- Approx. 1,125sqm allotment
- Automated Irrigation System
- 2x R/C Split Systems, Combustion heater + Ceiling Fans
Contact Team Heaslip today for more information and inspection times:
Ben Heaslip 0439 860 891 | Daniel Maley 0429 235 238
Disclaimer: Every precaution has been taken to establish the accuracy of the material herein. Prospective purchasers should not confine themselves to the contents but should make their own enquiries to satisfy themselves in all respects. South Coast Realty will not accept any responsibility should any details prove to be incomplete or incorrect. RLA 241454.
This impressive coastal residence embodies the best of Middleton living, highlighted by stunning coastline views of Middleton foreshore to Frenchman's Rock.
Having been cherished by the same family since built, the design embraces its seaside setting with practicality for everyday living.
Situated on an approx. 1,126sqm allotment with the residence spread across two generous levels – the layout is ideal for families, dual living, or hosting guests.
The upper floor showcases a light-filled open-plan living/ dining zone, anchored by a contemporary kitchen that seamlessly flows out to either the southerly ocean deck or the rear northerly, under main roof BBQ-entertaining deck.
A slow-combustion fireplace, soaring ceilings, and full-length windows enhance the sense of warmth and space. The master suite completes the upper level, with walk-in robes, ensuite, and its own private undercover balcony to enjoy ocean views and spectacular sunsets.
The lower floor provides excellent separation with three additional bedrooms and a second living area, serviced by bathroom and laundry, while also benefitting from its own sea views.
Outdoors, the property has been enhanced with an automated irrigation system running along the perimeter of the backyard for easy maintenance, while generous lawns and landscaped garden beds create an inviting setting for entertaining or relaxation.
Practical features add further value, including a double garage with rear roller door access to a large 6m x 6m workshop shed which includes 240V power. Wide street frontage accommodates caravan/ boat storage with pad beside driveway.
Situated within easy walking distance to Middleton’s surf beaches and close to local cafés and attractions, this residence delivers the perfect balance of coastal lifestyle and convenience.
KEY FEATURES
- Double Garage with high clearance roller doors
- 6m x 6m Workshop shed with 240V power
- 3.5kW Solar System
- Approx. 1,125sqm allotment
- Automated Irrigation System
- 2x R/C Split Systems, Combustion heater + Ceiling Fans
Contact Team Heaslip today for more information and inspection times:
Ben Heaslip 0439 860 891 | Daniel Maley 0429 235 238
Disclaimer: Every precaution has been taken to establish the accuracy of the material herein. Prospective purchasers should not confine themselves to the contents but should make their own enquiries to satisfy themselves in all respects. South Coast Realty will not accept any responsibility should any details prove to be incomplete or incorrect. RLA 241454.
Features
- Website Featured Property
