49 Padman Crescent, Middleton
CONTACT AGENT
Description
Coastal Living, Generous Allotment with Large Shed
Located in the highly desirable beachside suburb of Middleton, enjoy living along one of South Australia's most popular coastlines!
Just a short stroll to the sandy shores of Middleton Point ~ you can walk/ bike ride along the Encounter Bikeway to Middleton, Port Elliot or Goolwa townships where you'll find well-known cafes, restaurants and bakeries.
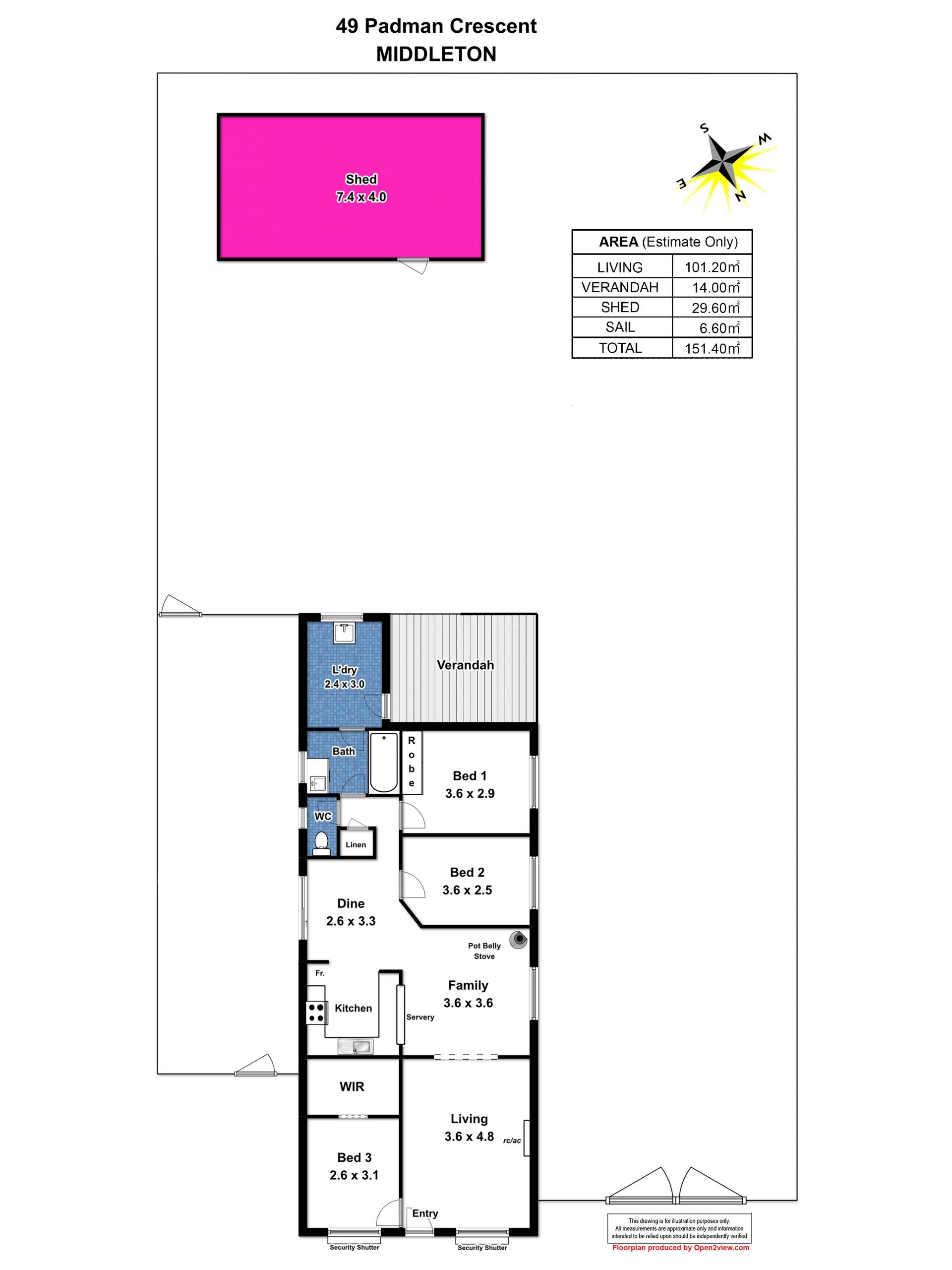
Situated on approx. 750sqm, the home comprises of a formal lounge with new timber-look flooring (vinyl strip planks) throughout, new reverse cycle air conditioning and manual shutters on northerly facing windows.
Formal lounge flows through to open plan living/ dining area with slow combustion.
Sliding door access from dining goes out to the enclosed paved alfresco with shade cloth, a great entertaining space for summer BBQs.
U- shaped kitchen is complete with electric Westinghouse appliances, pantry and ample cupboards.
Main bedroom overlooks the picketed-fence front yard and consists of WIR.
Bedrooms 2 and 3 are of good size, with Bed 2 having a BIR
Updated bathroom consists of combined shower/ bath and single vanity.
Separate w.c.
Spacious laundry with fixed trough provides access out to verandah.
Completing the home is a generous fully-enclosed rear yard which features a large shed with concrete floor; plus veggie patch garden and side access to store caravan/ boat/ trailer.
Whether you're looking for a weekender, investment or a home to enjoy yourself ~ contact Rob or Ben today to arrange a viewing.
Features:
• approx. 24x13ft shed
• New reverse cycle air conditioning
• Slow combustion
• Manual shutters on 2 x northerly facing windows
• New vinyl (timber-look) flooring
• New carpet in bedrooms
• New window treatments
• Enviro Cycle to keep garden green during hot summers
Every precaution has been taken to establish the accuracy of the material herein. Prospective purchasers should not confine themselves to the contents but should make their own enquiries to satisfy themselves in all respects. South Coast Realty will not accept any responsibility should any details prove to be incomplete or incorrect.
Just a short stroll to the sandy shores of Middleton Point ~ you can walk/ bike ride along the Encounter Bikeway to Middleton, Port Elliot or Goolwa townships where you'll find well-known cafes, restaurants and bakeries.
Situated on approx. 750sqm, the home comprises of a formal lounge with new timber-look flooring (vinyl strip planks) throughout, new reverse cycle air conditioning and manual shutters on northerly facing windows.
Formal lounge flows through to open plan living/ dining area with slow combustion.
Sliding door access from dining goes out to the enclosed paved alfresco with shade cloth, a great entertaining space for summer BBQs.
U- shaped kitchen is complete with electric Westinghouse appliances, pantry and ample cupboards.
Main bedroom overlooks the picketed-fence front yard and consists of WIR.
Bedrooms 2 and 3 are of good size, with Bed 2 having a BIR
Updated bathroom consists of combined shower/ bath and single vanity.
Separate w.c.
Spacious laundry with fixed trough provides access out to verandah.
Completing the home is a generous fully-enclosed rear yard which features a large shed with concrete floor; plus veggie patch garden and side access to store caravan/ boat/ trailer.
Whether you're looking for a weekender, investment or a home to enjoy yourself ~ contact Rob or Ben today to arrange a viewing.
Features:
• approx. 24x13ft shed
• New reverse cycle air conditioning
• Slow combustion
• Manual shutters on 2 x northerly facing windows
• New vinyl (timber-look) flooring
• New carpet in bedrooms
• New window treatments
• Enviro Cycle to keep garden green during hot summers
Every precaution has been taken to establish the accuracy of the material herein. Prospective purchasers should not confine themselves to the contents but should make their own enquiries to satisfy themselves in all respects. South Coast Realty will not accept any responsibility should any details prove to be incomplete or incorrect.
Features
- Living Area
